Resort F+B

Kandima Maldives | 2016 : Dhaalu Atoll

 

10 F+B experiences ready to explore

Opened 16th March 2017

 

 

 

 

[Selected] Architecture + Interiors + Animation :

Poole Associates Private Limited

3d images by Poole Associates

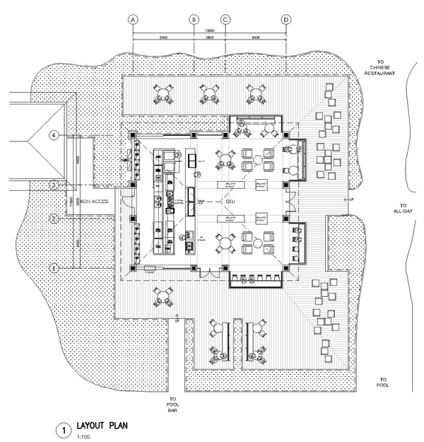
Simply Delish !

Like gourmet? You will love the on-site deli. Enter this casual and stylish food boutique for a quick bit or for something to take back to your abode. Everything looks delicious, fresh and you will certainly be back for more.

K-DL-A Deli : Zone A | DELI

< click the image for animated walkthru | v.02

 

 

   

   

 

 

 

 

 

 

 

home